Leave a Message

By providing your contact information to Sam McDadi Real Estate Brokerage, your personal information will be processed in accordance with Sam McDadi Real Estate Brokerage's Privacy Policy. By checking the box(es) below, you consent to receive communications regarding your real estate inquiries and related marketing and promotional updates in the manner selected by you. For SMS text messages, message frequency varies. Message and data rates may apply. You may opt out of receiving further communications from Sam McDadi Real Estate Brokerage at any time. To opt out of receiving SMS text messages, reply STOP to unsubscribe.

Thank you for your message. We will be in touch with you shortly.

TH-1 End Block F, Tapscott Rd

Welcome to TH-1 End Block F, Tapscott Rd

Bed: 2
Bath: 1
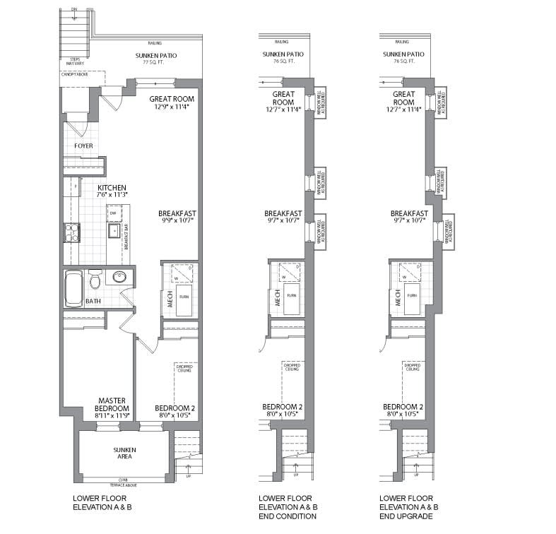
Sq Ft: 871
 
Presto Modern Towns by Ambria Homes presents a unique opportunity to own a stylish condo stacked townhouse in bustling Scarborough. This upgraded end unit, located at Tapscott Road, offers the TH-1 End Orion model with Elevation B, featuring 794 sq ft of well-designed living space and an additional 77 sq ft balcony. The unit includes 2 bedrooms, 1 bathroom, 1 parking spot, and bike storage, making it an excellent choice for urban living.
 
Situated in a vibrant area of Toronto, Presto Modern Towns provides residents with convenient access to local amenities, parks, shopping centres, and public transportation. The project is designed with modern finishes and a thoughtful layout, ensuring a comfortable and functional living environment. Don’t miss out on this exciting opportunity – contact us today to learn more about Presto Modern Towns.
 
  • Project/Community name: Presto Modern Towns
  • Product type: condo stacked townhouse
  • Builder name: Ambria Homes
  • Model / elevation: TH-1 End – The Orion, Elevation B, Upgraded End Unit
  • Area: 871 sq ft w/ balcony
  • # of beds and baths: 2 Beds | 1 Baths | 1 Parking | Bike Storage
  • Closing/Occupancy: Dec 19, 2024

Download Property Information


Register to view floor plans

Community under construction – occupancy begins Summer/Fall 2026
VIP Access by Sam McDadi Real Estate Brokerage

By registering, you agree to receive updates, pricing, and promotional materials about this development from Sam McDadi Real Estate Brokerage and its partners. Your information is protected under our privacy policy and will not be shared without your consent. You may unsubscribe at any time.

Register to view features & finishes

Community under construction - occupancy begins Summer/Fall 2026 VIP Access by Sam McDadi Real Estate Brokerage

By registering, you agree to receive updates, pricing, and promotional materials about this development from Sam MeDadi Real Estate Brokerage and its partners. Your information is protected under our privacy policy and will not be shared without your consent. You may unsubscribe at any time.

Follow Me on Instagram